Maison ANEMONE
Modèle de maison ANEMONE
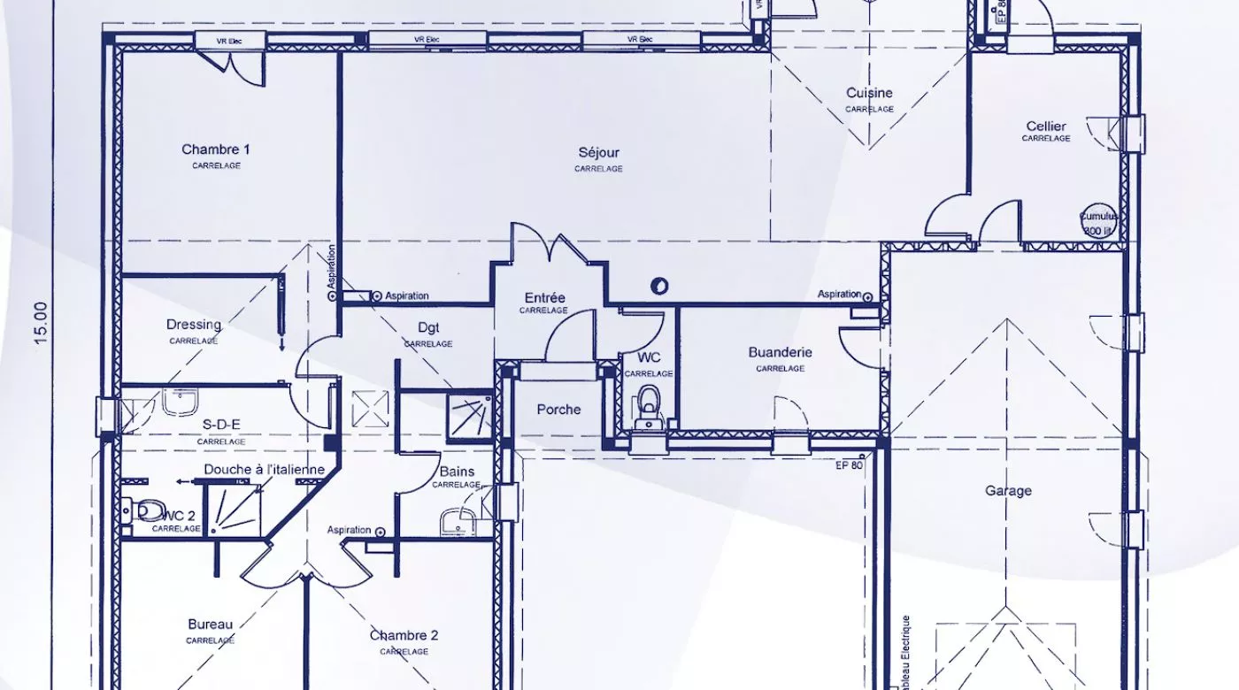
Le modèle Anémone est une vaste maison de plain-pied de style traditionnel dont l’architecture originale saura séduire les plus exigeants en la matière. En forme de U, elle comporte un bow window à l’arrière, et un porche couvert à l’avant, qui lui donnent son caractère. Cette maison comporte 3 chambres, dont une avec dressing, une salle de bain et une salle d’eau, un bureau, une buanderie, un cellier et un grand garage, sans compter son séjour de plus de 30 m2.
Demandez une étude gratuite pour connaître votre future mensualité






