Maison BEGONIA
Modèle de maison BEGONIA
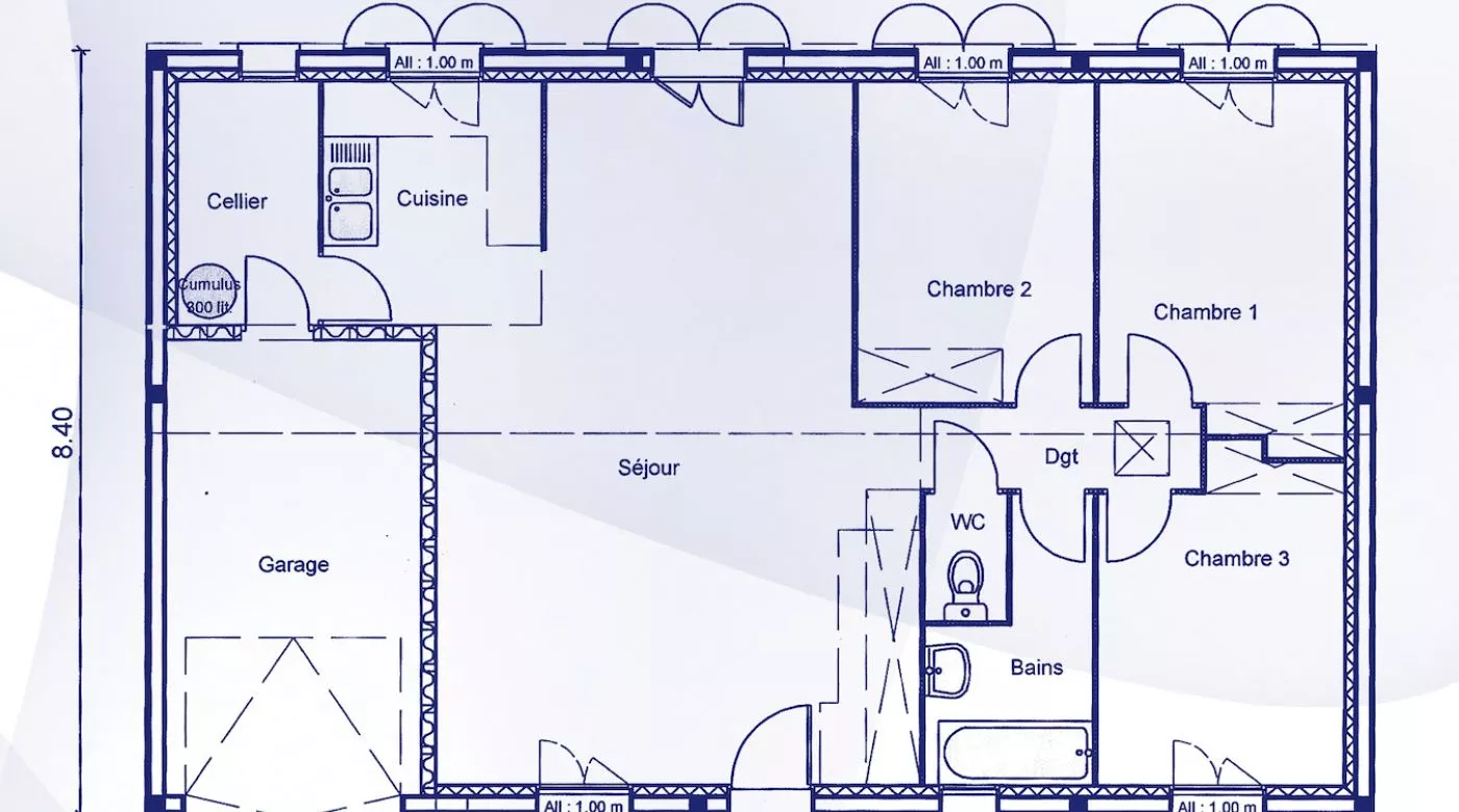
Le modèle Bégonia est une maison de plain-pied de style traditionnel avec garage de 83 m2. Ses proportions équilibrées et son plan en font une maison à la fois séduisante et fonctionnelle. Son vaste séjour de 35 m2, modulable et lumineux, sa cuisine et le cellier attenant assurent le confort des pièces à vivre. Les trois chambres sont indépendantes et séparées des espaces de vie commune.
Demandez une étude gratuite pour connaître votre future mensualité






