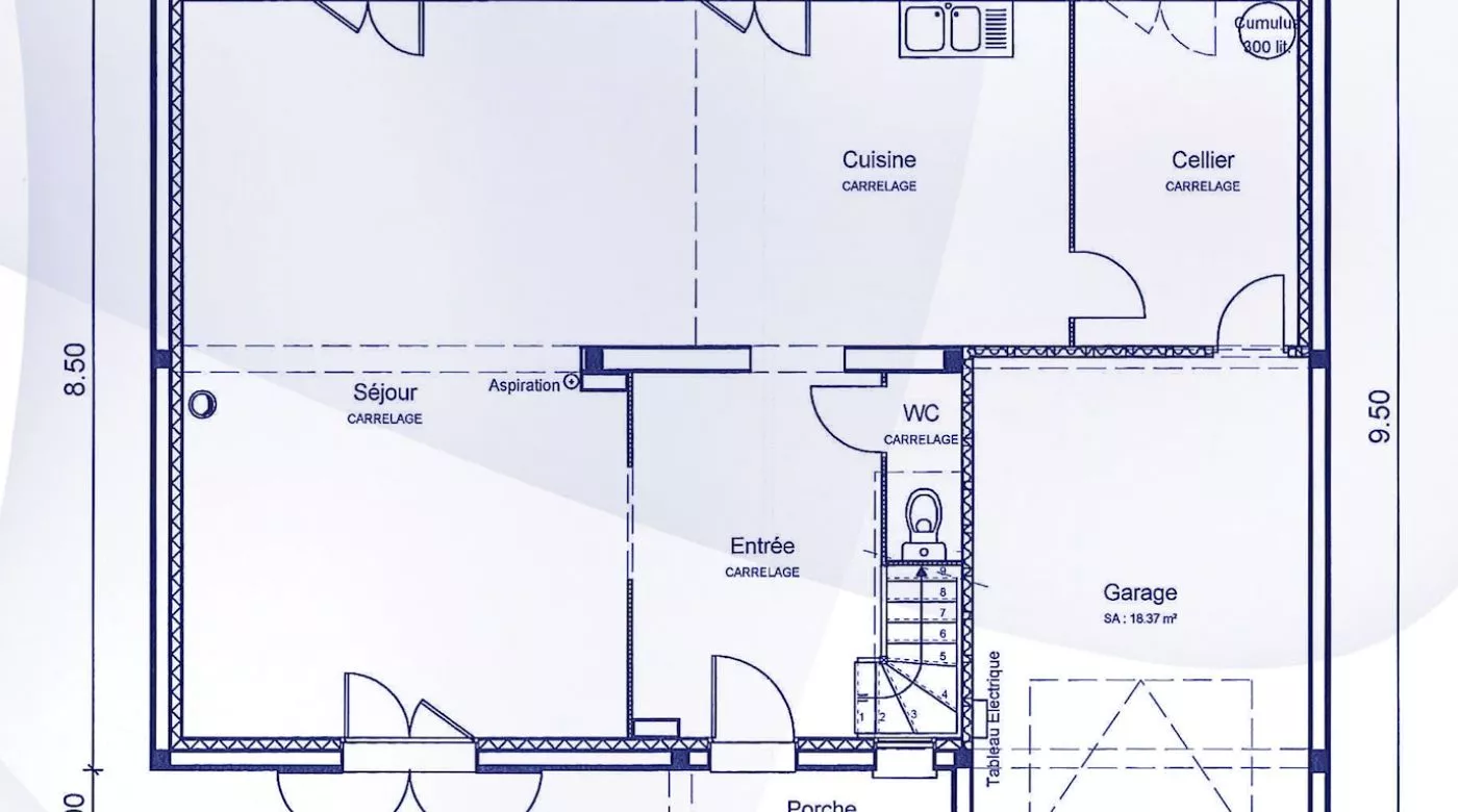
Maison BOULOGNE
Modèle de maison BOULOGNE
Maisons Clairval vous propose de construire cette maison neuve avec toutes les prestations suivantes :
- Plan sur-mesure et personnalisé de 2 à 5 chambres
- Mode de chauffage au choix
- Grands choix d'équipements et de prestations
- Matériaux de qualité selon les normes en vigueur
- Accompagnement dans le choix et l’acquisition du terrain
- Construction conforme à la nouvelle RE 2020
Demandez une étude gratuite et personnalisée de votre projet de construction !
Demandez une étude gratuite pour connaître votre future mensualité







