Maison COLISEE
Modèle de maison COLISEE
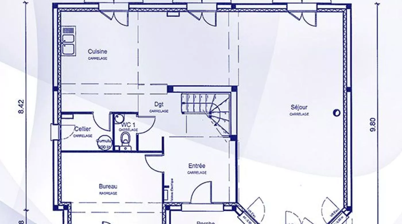
Le modèle Colisée est une spacieuse maison à étage de 176 m2 de style traditionnel, à l’architecture élégante : les grands volumes sont équilibrés par les décrochements de façade et sa toiture originale, et lui donnent un cachet certain. Cette maison comporte 3 chambres à l’étage, dont une suite parentale de presque 27 m2 avec un dressing (4,85 m2) et une salle de bain privative de (6m2), qui vient s’ajouter à la salle de bain principale avec baignoire. Au rez-de-chaussée, les espaces de vie communes sont organisés de façon fonctionnelle et modulable à la fois : un très grand séjour de presque 49 m2, prolongé par une cuisine de presque 13 m2. L’entrée dessert également un bureau isolé, aménageable selon les besoins de chacun.
Demandez une étude gratuite pour connaître votre future mensualité







