Maison COQUELICOT
Modèle de maison COQUELICOT
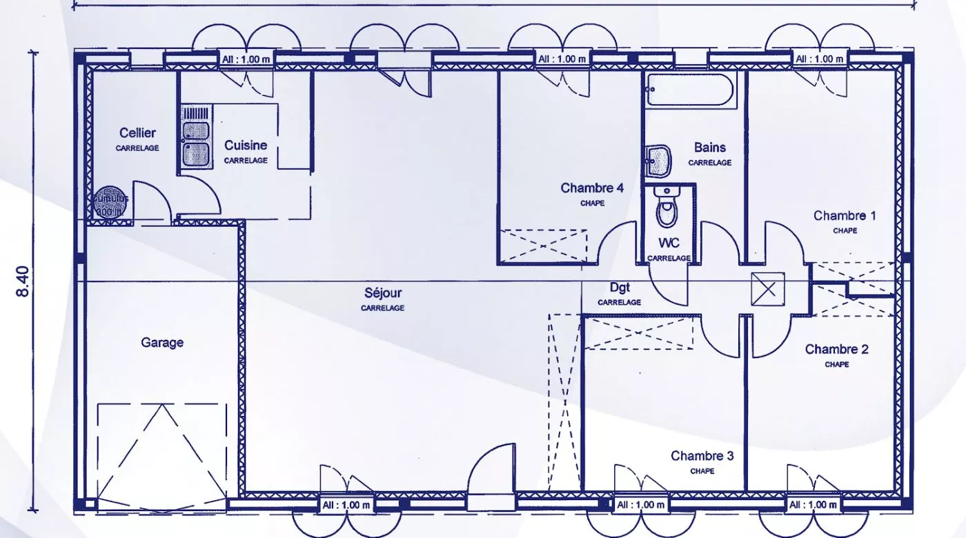
Le modèle Coquelicot est une maison de plain-pied de 98 m2 avec garage. Toute en longueur son architecture classique et sobre saura s’adapter à tous les environnements. Ses grands volumes et ses nombreuses ouvertures privilégient le confort des habitants. Le vaste séjour de 38 m2 distribue d’un côté la cuisine et son cellier (depuis lequel on peut aussi accéder au garage) et de l’autre côté 4 chambres, une salle de bain avec baignoire et un wc indépendant.
Demandez une étude gratuite pour connaître votre future mensualité






