Maison JUPITER
Modèle de maison JUPITER
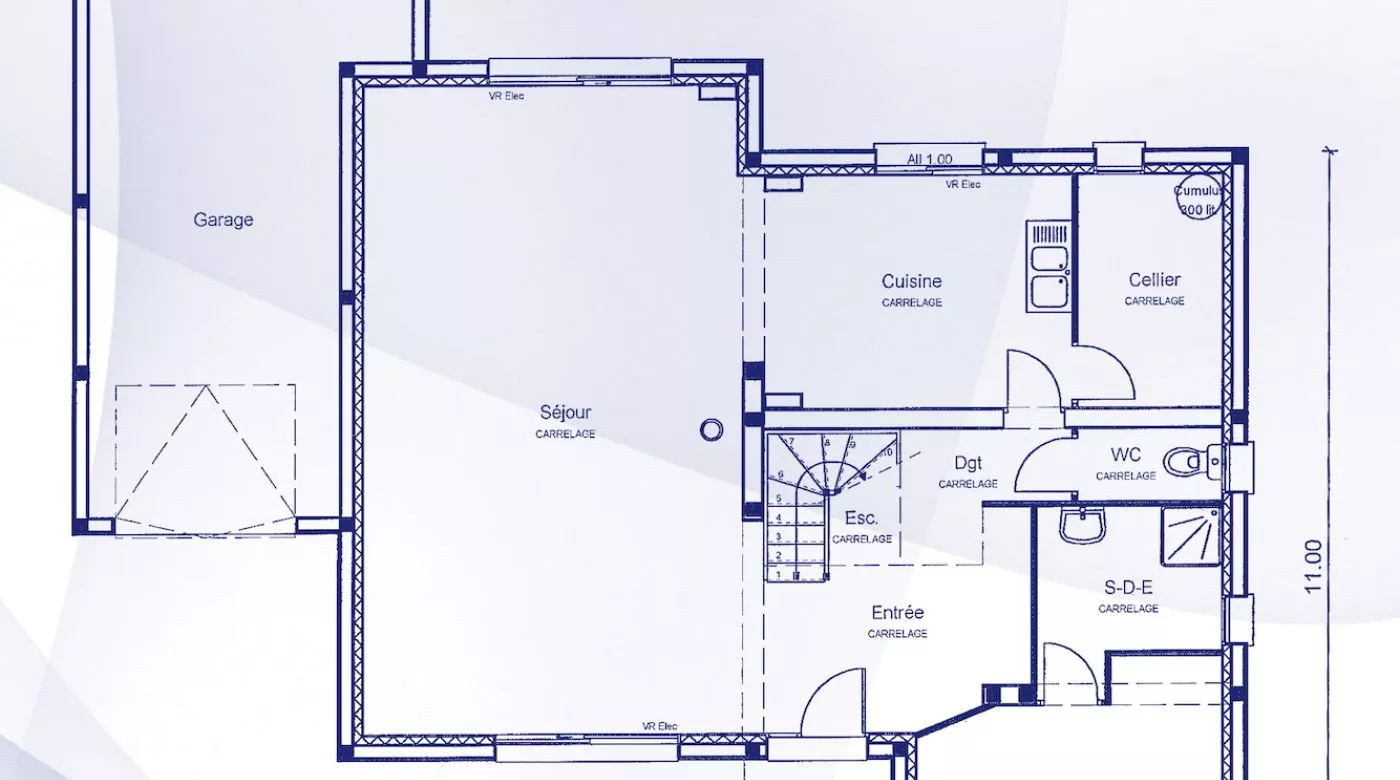
Le modèle Jupiter est une grande maison contemporaine de 162 m2 avec garage intégré. Son architecture moderne et sobre crée un jeu de lignes et de pentes original et séduisant : les différents décrochés de façade, à l’avant comme à l’arrière, ainsi que leurs différents niveaux structurent l’ensemble ; la flèche centrale, le balcon translucide et l’agencement des toitures lui rendent légèreté et élégance. Cette maison comporte 4 grandes chambres. 3 d’entre elles sont situées à l’étage, sous les toits : une suite parentale isolée des autres pièces (15 m2), avec roberie (4,77 m2) et salle de bain privative (7 m2, avec baignoire et fenêtre), et deux autres chambres spacieuses, de 15 et 13 m2, donnant sur un large palier de presque 7 m2, desservant aussi une salle d’eau et un WC, et suffisamment grand pour en faire un espace de vie ou de rangement supplémentaire. Le rez-de-chaussée rassemble les pièces de vie commune et la dernière chambre (14 m2) avec sa salle d’eau privative, et privilégie les grands volumes, l’espace et la lumière : une entrée dessert un large séjour (43 m2) avec double exposition s’ouvre sur une cuisine dinatoire (13 m2) et son cellier, tout en préservant l’intimité de la chambre, isolée du bruit et de l’activité de la maison. Un garage de 26 m2 vient compléter l’ensemble.
Demandez une étude gratuite pour connaître votre future mensualité







