Maison LILAS
Modèle de maison LILAS
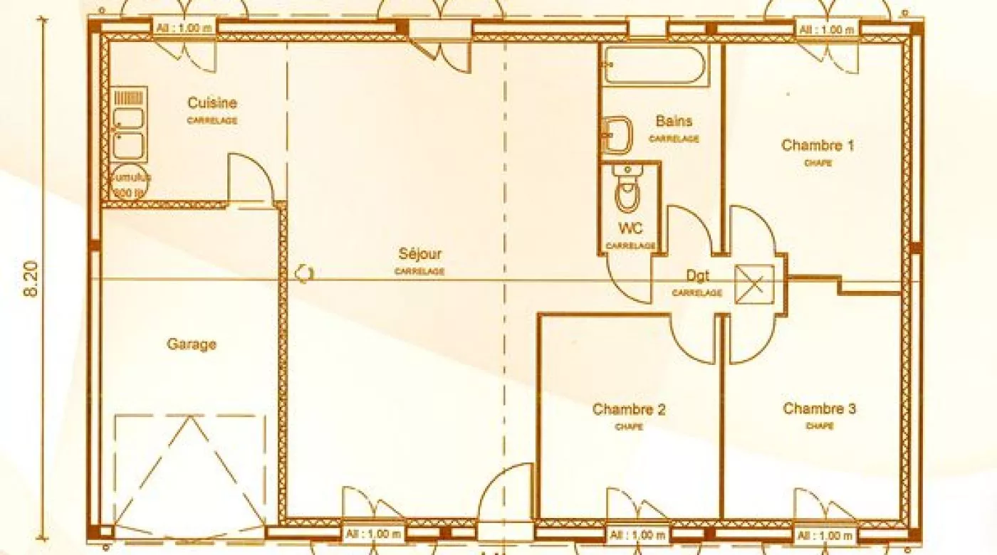
Le modèle Lilas est une maison de plain-pied de style classique, avec un toit à deux pentes et de nombreuses fenêtres et portes-fenêtres pour profiter de la lumière naturelle et des espaces extérieurs. D’une surface totale de 79 m2, son plan est modulable et fonctionnel : cette maison comporte 3 chambres indépendantes et séparées des pièces de vie commune, et un grand séjour de presque 34 m2 donnant sur une cuisine ouverte ou fermée. Un garage vient compléter l’ensemble, auquel on peut accéder depuis l’intérieur de la maison.
Demandez une étude gratuite pour connaître votre future mensualité






