Maison NEPTUNE
Modèle de maison NEPTUNE
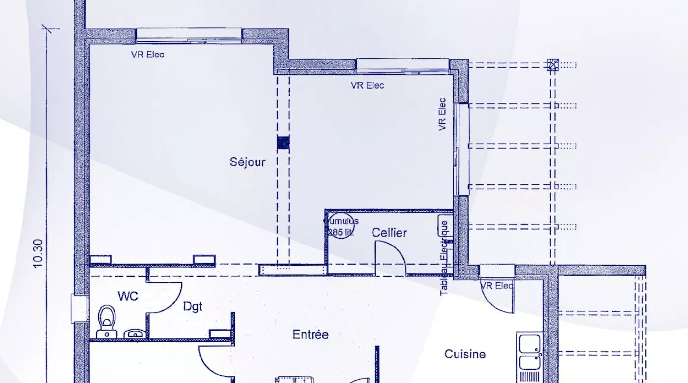
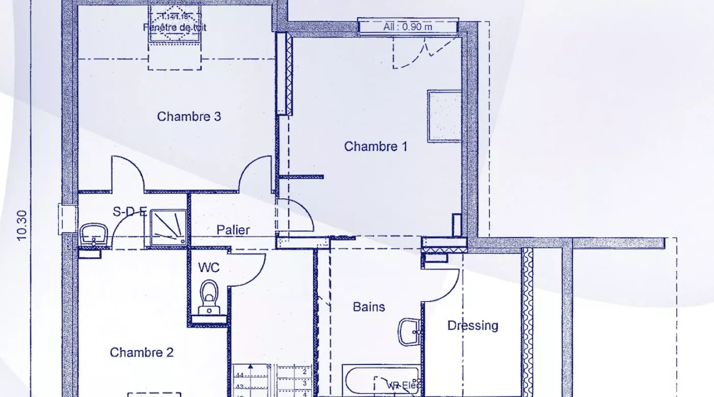
Le modèle Neptune est une maison contemporaine de 137 m2. Son architecture très originale est légère, malgré ses volumes et plans complexes. La pente de la toiture, particulièrement basse, permet d’aménager un auvent double sur l’un des côtés de la maison, et créer un jeu de lignes élégantes et de ménager de nombreuses ouvertures pour bénéficier de la lumière naturelle dans toutes les pièces de la maison. es plans de cette maison sont dessinés de manière à fournir confort et adaptabilité aux habitants/ au rez-de-chaussée, une grande entrée dessert les différents espaces : une grande cuisine dinatoire (15 m2) et son cellier, un séjour également très spacieux (35 m2) et lumineux, avec trois portes-fenêtres. Un bureau de 9 m2 complète cet aménagement, isolé des pièces à vivre. À l’étage, les pièces « intimes » : 3 chambres de belles proportions (11,5, 13 et 1-,5 m2). La suite parentale dispose de sa propre salle de bain avec baignoire, ouverte sur un grand dressing, et les deux autres chambres ont accès à une salle d’eau, qui a également le mérite de les isoler l’une de l’autre, pour plus de tranquillité.
Demandez une étude gratuite pour connaître votre future mensualité







