Maison ORION
Modèle de maison ORION
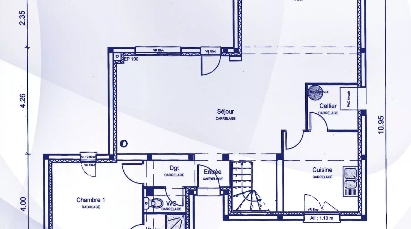
Le modèle Orion est une maison grande maison R+1 de style contemporain, de 141 m2. Son architecture originale est pensée de manière à ce que ses volumes et sa surface ne nuisent pas à son esthétique : les décrochés de façade, à l’avant et à l’arrière, et les pentes de la toiture, avec une partie centrale à toit plat, allègent la structure et lui donnent une apparence originale et élégante. De plus, cette maison est équipée de nombreuses fenêtres et portes-fenêtres, qui créent un graphisme intéressant en façade, et permettent de bénéficier largement de la lumière naturelle. À l’intérieur, l’agencement des pièces est fonctionnel et confortable : au rez-de-chaussée, un vaste séjour en L de 41 m2, ouvert sur l’extérieur, donnant sur une cuisine de 9 m2 et son cellier. Une première chambre, isolée des pièces à vivre et dotée d’une salle de bain privative, complète le plan. A l’étage, 4 chambres spacieuses (1à, 11 12 at 15 m2) pour accueillir toute la famille, agencées de manière à préserver la tranquillité et l’intimité de chacun.
Demandez une étude gratuite pour connaître votre future mensualité







