Maison PLUTON
Modèle de maison PLUTON
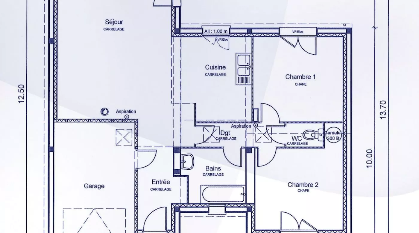
Le modèle Pluton est une maison de plain-pied de 77 m2 avec garage, alliant une esthétique contemporaine et des lignes classiques. Cette architecture lui permettra de s’intégrer dans n’importa quel environnement, et son emprise au sol de s’adapter à tous les types de terrains. A l’avant, les décrochés de façades et la flèche du toit lui donnent une apparence originale et élégante. A l’arrière, le même procédé permet de ménager une terrasse protégée dans le jardin, pour profiter des espaces extérieurs.Les plans de cette maison sont fonctionnels et modulables. Les espaces de vie communes sont séparés des chambres, pour préserver la tranquillité et l’intimité de chacun. Une entrée dessert un grand séjour de 32 m2, ouvert sur une cuisine également spacieuse (9 m2), créant un vaste espace en L adaptable en fonction de vos envies et modes de vie. Un dégagement distribue ensuite les deux chambres et la salle de bain.
Demandez une étude gratuite pour connaître votre future mensualité






