Maison SATURNE
Modèle de maison SATURNE
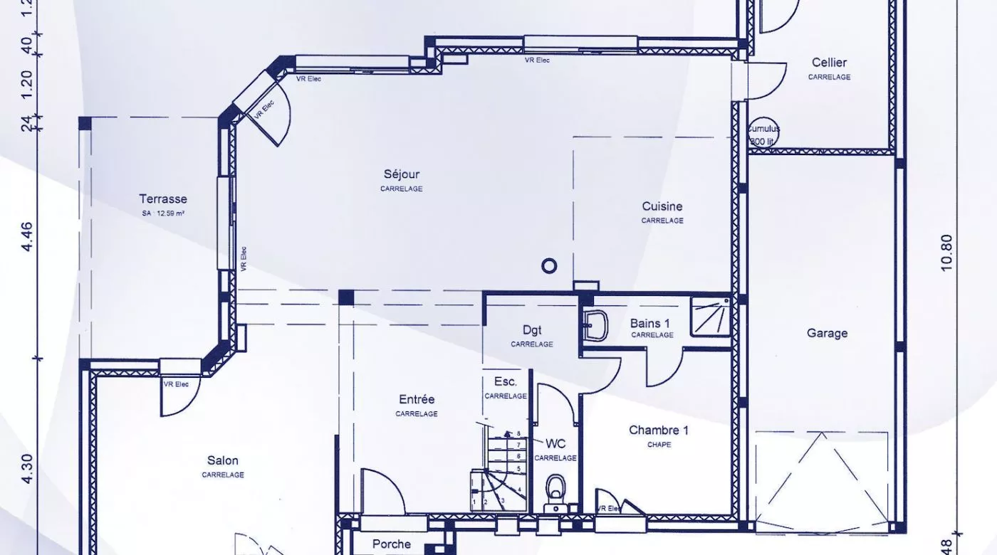
Le modèle Saturne est une grande maison familiale de 202 m2 avec garage intégré, dont l’architecture contemporaine conserve certaines caractéristiques plus classiques, ce qui lui permet de s’intégrer dans n’importe quel environnement. Les décrochés de façade et de la toiture ainsi que le jeu des lignes du toit et des fenêtres lui donnent une apparence originale et élégante. À l’arrière, un pan de mur est entièrement vitré, pour laisser entrer largement la lumière naturelle et renforcer le caractère moderne de cette maison. l’intérieur, l’organisation des pièces permet de disposer de nombreux et divers espaces de vie commune tout en préservant la tranquillité des habitants dans les pièces « intimes ». Au rez-de-chaussée, une grande entrée (10 m2) ouvre sur un séjour de 36 m2 avec cuisine ouverte de 9 m2 et son cellier (8 m2), prolongé par un salon de 19 m2. Les deux ouvrent sur une terrasse de 13 m2. Le plan est complété par une première chambre, isolée des pièces à vivre disposant d’une salle de bain privative. À l’étage, trois chambres supplémentaires, sous les toits, distribuée par un pallier de 30 m2, qui peut être affecté à différents usages (salle de jeu, multimédia, bibliothèque, etc.). Chacune des chambres possède sa propre salle de bain, et deux d’entre elles d’une roberie dont la taille est conséquente (1à et 8 m2).
Demandez une étude gratuite pour connaître votre future mensualité







