Maison VANNEAU
Modèle de maison VANNEAU
"Le modèle Vanneau est une grande maison à étage de 187 m2 avec garage accolé. L’architecture de cette maison en V possède beaucoup de charme : ses volumes et ses différences de niveaux lui donnent une apparence originale, tout en respectant les règles de l’esthétique traditionnelle.Le modèle Vanneau est une grande maison à étage de 187 m2 avec garage accolé. L’architecture de cette maison en V possède beaucoup de charme : ses volumes et ses différences de niveaux lui donnent une apparence originale, tout en respectant les règles de l’esthétique traditionnelle.
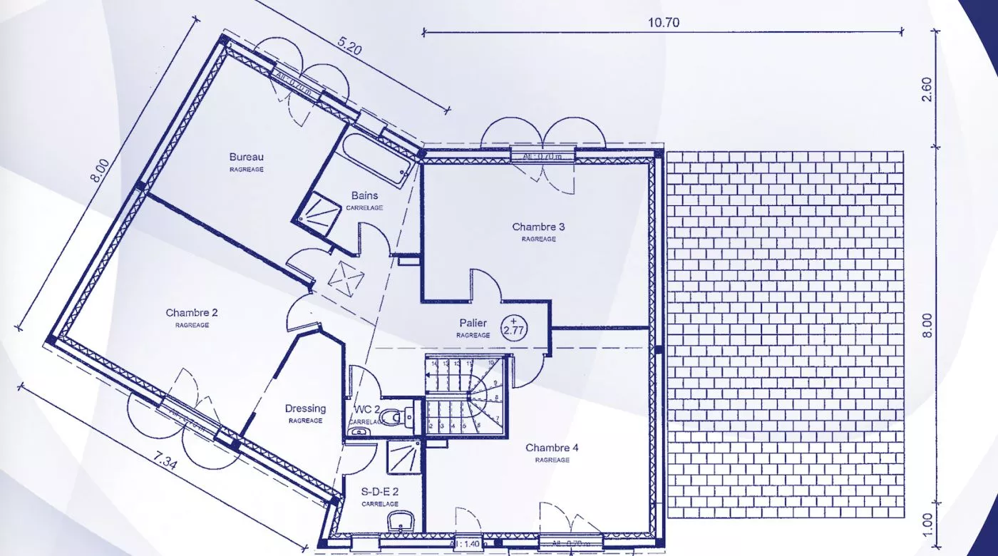
Le plan de cette maison est également particulier : au rez-de-chaussée, une entrée dessert un vaste séjour traversant de 47 m2 ouvert sur une cuisine lumineuse de 9,50 m2 agrémentée d’un grand cellier (10 m2) aménagé derrière le garage, mais aussi une chambre et sa salle d’eau privative, pour un espace indépendant et isolé. A l’étage, 3 autres grandes chambres de 16 m2 et plus, la plus grande dotée d’un dressing et salle de bain privative, une salle de bain commune avec fenêtre et baignoire."
Demandez une étude gratuite pour connaître votre future mensualité







