Maison VENTURON
Modèle de maison VENTURON
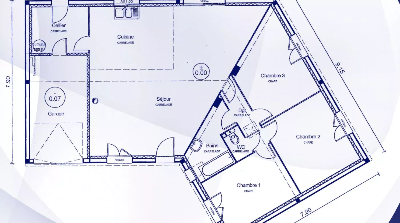
Le modèle Venturon est une maison de plain-pied avec garage de 100 m2. L’originalité de son architecture réside dans sa forme en V, ses proportions compactes et ses lignes élégantes. La présence de nombreuse portes-fenêtres permet de bénéficier de la lumière naturelle et de profiter au mieux de ses espaces de vie : un vaste séjour de 35 m2 ouvert sur l’extérieur, une cuisine ouverte donnant sur un cellier de 6 m2 (ouvrant lui-même sur le garage) d’un côté, et de l’autre côté, les espaces « intimes » : 3 grandes chambres et une salle de bain.
Demandez une étude gratuite pour connaître votre future mensualité






