Maison VIREON
Modèle de maison VIREON
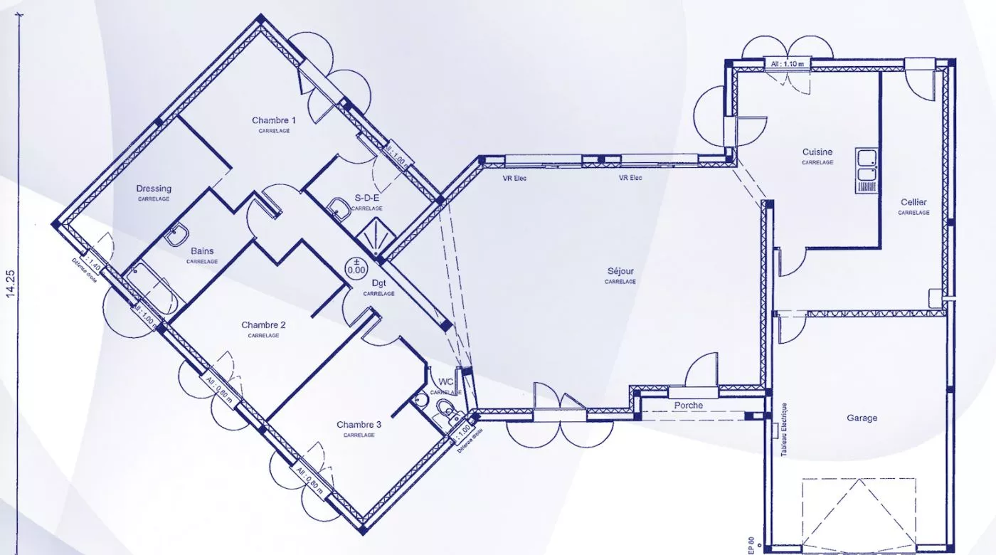
Le modèle Viréon est une maison de plain-pied de 145 m2 avec garage, dont l’architecture originale saura tenter les plus audacieux. Les façades avant et arrière, en forme de U, sont très différentes d’aspect, et le jeu des volumes, des pentes de toit et des décrochés de façade crée une esthétique inédite et élégante. A l’intérieur, le plan de cette maison est simple, fonctionnel et modulable : les espaces de vie commune, le séjour de 50 m2 et sa cuisine et son cellier de 16 et 14 m2, et de l’autre, les espaces « intimes » où l’on retrouve 3 grandes chambres (entre 12 et 13,35 m2) dont une avec salle d’eau privative, et une salle de bain commune avec baignoire et fenêtre.
Demandez une étude gratuite pour connaître votre future mensualité






